凯发官网 90后女主号称“收纳狂魔”, 在89㎡的家里打满柜子却不压抑, 襄助

小户型在装修的技术都有一个共同的“痛点”,那便是收纳空间太有限。
毕竟家内部积不大,又要广博亮堂、又要整洁面子,还思有超多收纳空间,思同期罢了,照实有点难。
不外今天给全国共享的这套小户型装修案例,既知足了屋主对多数收纳空间的需求,也知足了屋主对空间好意思感的条目。
这是一套89㎡的二手房两居室,屋主是一双年青的90后配偶,装修主要由女主认真,号称“收纳狂魔”的女主在家里打满了柜子但视觉上却不压抑,赢得了家东说念主的夸赞和邻居的襄助。
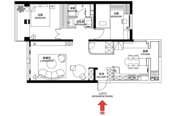
原始户型图分析:

原始户型全体相比正派,但餐厅厨房距离太远不太好用,全体的收纳空间也不够,女主有不少滑雪设立需要一个孤苦的收藏间收纳,卫生间也不大,放不下女主思要的浴缸;主卧阳台还有一个不行撤消的柱子,阳台与室内大地存在高度差需要处置。
平面布局图:
缱绻师和屋主相同明,联接房屋特质,给室内布局作念了新的权术:

①入户门对面缱绻收藏间;
②厨房增设岛台,重叠用餐功能;
③借用主卧扩大卫生间,增放浴缸。
在信服了平面布局后,格调上遴荐了女主心爱的相沿法式风,优雅风雅。
玄关:

纠正后的玄关门洞作念了减轻,入户门右侧定制了一组鞋柜,左侧扬弃了全身镜,功能性很皆全。


参预室内,领先看到的便是正对入户门的收藏间外墙,缱绻师专门把它作念成了弧形,下半部分作念了马赛克墙裙,搭配极窄的相沿案条,把先锋、个性、相沿和风雅演绎的大书特书。
收藏间+过说念:

收藏间是后头新加的空间,为了不让它的存在给室内带来逼仄感,缱绻师不仅给它作念了面子的外不雅缱绻,还在顶部留出了10公分的高度算作呼吸缝,这么视觉上既不会压抑还能起到蔓延遵守。

收藏间的拐角墙体作念了弧形处理,与之对立的是过说念另一侧的电视墙转角也作念了弧形处理,两者相呼应;何况屋主在空间里穿行时也更顺畅,有放大空间的遵守。



储物间作念了隐形门,为了让它的“隐形”遵守更好,并莫得遴荐旧例矩制门,而是木匠现场打制,名义贴石膏板再用乳胶漆覆面,与其它墙体完全成为一个全体。
厨房:

厨房遴荐了玄色双开门,顶部是弧形造型,搭配银色门把手,相沿感拉满。


厨房面积不小,外面还麇集了一个小阳台,为了把空间行使率最大化,除了靠墙的橱柜外,缱绻师还在厨房中央缱绻了一个岛台,其实亦然配偶俩平淡用餐的方位。


厨房的一侧是中厨,凯发娱乐(K8)官方网站定制了L型橱柜扬弃灶台和水槽,另外一侧是水吧区主要作念咖啡、简餐。
厨房外是家政区,与厨房用长虹玻璃移门离隔,既好意思不雅也不错窒碍油烟。
餐厅:

在这个并不是很大的屋子里,女主遴荐保留两个餐厅,一个在厨房是平淡用餐区,一个在客厅旁是一又友约聚时的场面。

餐桌椅是女主全心挑选的,胡桃木的材质与款式都带着相沿的气味,奶白色的小吊灯与灯盘增添了法式氛围感。

缱绻师并莫得按照旧例矩制餐边柜,而是缱绻了一组内嵌式的壁龛柜;底下是藤编柜门的收纳柜,上头是层板+壁纸,一半收纳杂物,一半展示好意思好,实用和颜值俱佳。
客厅:

客餐厅接受了一方式的缱绻,大地是通铺的实木地板,顶面作念了一方式的走边吊顶+石膏线粉饰,不压层高又好意思不雅;

总共这个词公区的墙面都是息争的奶白色乳胶漆,搭配缱绻感皆备的产品,莫得琐碎的粉饰,尽显空间的干净利落。


电视墙简易利落,定制了一组落地收纳柜和悬空电视柜,处置客厅的杂物收纳;又遴荐了宝格丽大理石粉饰电视柜台面,木质的温润与石材的冷冽形成是非的对比,既浪费又和顺。

沙发墙用石膏线作念了墙裙缱绻,很有护墙板的遵守;搭配蓝色的沙发,冷暖色彩的碰撞让总共这个词空间的视觉遵守更显高等。

客厅莫得阳台,两扇窗户都都搭配了木质的百叶窗,胡桃木的款式很合乎总共这个词公区的基调,当光影透过百叶窗照进室内也更有养息感。
主卧:

主卧遴荐了奶白色的双开门,增强了生涯的庆典感。

排闼而入的骤然就能看到阳台盎然的绿意。缱绻师以双拱形来粉饰阳台门洞,以次来弱化承重柱的存在;


拱形门洞中定制了定制了蔷薇花图案的彩色玻璃,搭配绿植营造出一种“绿野仙踪”的氛围感。

因为把空间借给了卫生间,纠正后的主卧面积并不大,是以床体紧靠阳台扬弃;床头配景用石膏线+浅绿色乳胶漆粉饰,搭配藤编床头和胡桃木的半高墙裙,相当契合全体的当然气味。


床尾墙面装配了壁挂的杂志架,上头带的抽屉不错算作梳妆台使用,小收纳柜不错放护肤品和化妆品,兼具好意思不雅与实用。
次卧:

次卧面积相比小,窗台下定制了长条书桌,侧面定制了书橱和收纳柜,还不错放下一张1.5米宽的双东说念主床,暂时不错算作客房+书斋使用,以后不错随时改酿成儿童房。
卫生间:

卫生间进口在两个卧室中间,遴荐了与墙面同色系的法式造型门搭配长虹玻璃,幸免过说念的逼仄感。

卫生间内缱绻了浴室柜、马桶、浴缸和淋浴,知足了女主的需求;干区和湿区之间用半墙+玻璃窒碍,这么不会压缩空间。

缱绻师遴荐了胡桃木的浴室柜,牛油果绿的半高墙砖、玄色极窄腰线搭配黑白格子地砖,让这个不大的空间也显得既相沿先锋又簇新风雅。
马桶区在门后位置,壁挂马桶上头还缱绻了收纳柜不错用来放纸巾等囤货。
写在终末:
这套屋子的面积并不大凯发官网,但纠正后的实用性和功能性都增强了;缱绻师通过专科的手法擢升了屋主的居住体验感。
NBA篮球投注app官网下载最新资讯
- 2026-04-03K8凯发官网 据说哥哥英宗复位,身为大翌日子的景泰帝为何连说三声好?
- 2026-04-03凯发娱乐(K8)官方网站 害死民族硬人于谦的四个奸贼是谁?他们临了的下场又是什么?
- 2026-04-03凯发官网 宋高宗生母在金国为奴15年,为何归国后就对避祸而归的公主发难?
- 2026-04-03K8官网 《唐朝诡事录》参天楼案的信得过幕后元凶是谁?你看懂了吗?
- 2026-04-03K8官网 帕金斯:SGA打出多个MVP级别赛季才拿MVP 文班络续弘扬来岁我投你